Мангал с казаном из металла своими руками чертежи и фото: Мангал с печкой под казан из металла: делаем своими руками
Мангал с печкой под казан из металла: делаем своими руками
Мангал с печкой под казан изготавливают из разных материалов, но самый популярный — металл. С помощью такой конструкции можно готовить два блюда одновременно. Сделать мангал можно своими руками, руководствуясь пошаговой инструкцией в этой статье.
Содержание
- Фото разнообразных изделий
- Инструкция по изготовлению
- 4 чертежа мангалов для резки на станке
- Заключение
Фото разнообразных изделий
Перед тем как мы приступим, предлагаю посмотреть фотографии изделий, которые можно изготовить. Нет предела фантазии авторов: можно сделать самые разнообразные конструкции на любой вкус и сложность. Прикиньте свои силы и реальные потребности, только после этого стоит закупать материал.
Инструкция по изготовлению
Наш мангал с печкой для казана будет относительно простым. При желании опытные мастера смогут самостоятельно украсить его дополнительными “фишками” и даже сделать мангалу крышу.
Либо все-таки обратиться к профессионалам и заказать мангал на заказ.
Приступим. Нам понадобится лист металла толщиной 2 мм.
Размеры указаны на картинке ниже.
Приступим к разметке заготовки по ним.
Вырежем болгаркой одну из стенок.
Используем эту деталь как лекало, которое остаётся только обвести маркером.
Вырежем ещё две детали.
Для соблюдения строгих углов — угольник в помощь.
Теперь можно сваривать вырезанные элементы. По ходу процесса изготовления вырезать квадрат, приварить с правой стороны.
Разметим ещё один квадрат в виде арки, вырежем, приварим.
Два подрезанных уголка и деталь, которая будет выполнять роль дверцы.
Читайте также: Инструкция по изготовлению мангала из автомобильных дисков
Дверка выглядит так:
Необходимо вырезать отверстия по кругу.
Далее режем болгаркой.
Должно получиться обычное отверстие.
Отрезок трубы с регулировкой горения в виде заслонки не будет лишним дополнением к этой конструкции.
Приваренная:
Мнение эксперта
Алексей Гаврилов
Специалист по кухне барбекю и оборудованию
«Зуб», или пластина-отбойник для пламени — неотъемлемая часть данной печи. При его отсутствии пламя будет улетать в трубу.
Перейдем к дверце. Приварим петли, предварительно сделав лишь один надрез и только после вырезая остальные линии.
Готовый вариант:
Ручка классическая.
Внутренняя часть дверцы усилена металлической полоской. Квадратом усилим внутреннюю часть передней стенки.
Разметим прямоугольные отверстия под «колосник», вырежем.
Прикрепим к основной конструкции.
Приложим верхнюю крышку, убедимся, что всё подходит.
Разметим в ней отверстия под казан, 12 л.
Читайте также: Как сделать мангал из простой бочки
Но перед тем как приступить, тоже усилим металлическим квадратом.
Из получившегося круга сделаем накладку под казан, 4 л.
Вы можете выполнить без накладки, если у вас есть конкретный казан или кастрюля с определенным диаметром.
Под него и сделайте вырез.
Остаётся всё проварить по кругу — и большая половина общего объёма работы выполнена.
Угольный ящик согнем из металла 1,5 мм, приделаем ручку.
Вставим в специальные держатели.
Чтобы стенки при сварке не повело, воспользуйтесь струбцинами.
Не пренебрежем дополнительным усилением нижней части мангала.
Четыре пластины под ножки приварим по углам дна.
Трубы-ножки можно будет выкрутить, например, для удобства транспортировки.
Это делается за счёт резьбы.
Готовая конструкция выглядит следующим образом:
Отверстия в боковых стенках мангала не делаются специально. С обеих сторон — по паре ручек: такой вариант одному не унести.
Далее следует окраска термостойкой краской, которая выдерживает температуру до 600° или более.
На дне сверлятся отверстия для отвода воды, если пошёл дождь.
С вмонтированной трубой мангал с печкой выглядит так:
Читайте также: Мангал с печкой под казан с крышей (своими руками)
4 чертежа мангалов для резки на станке
По чертежам ниже можно сделать мангал на станке или своими руками
Все чертежи мангалов
Заключение
Мангал с печкой под казан изготавливают из разных материалов, но самый популярный — металл.
С помощью такой конструкции можно готовить два блюда одновременно. Сделать мангал можно своими руками, руководствуясь пошаговой инструкцией в этой статье.
Чертежи мангалов из металла: фото
Мангал – удобное и полезное кулинарное оборудование для готовки на жару. Это функциональное изобретение позволяет готовить разную пищу, применяя натуральный жар от углей. Несмотря на то, что изначально оно изготавливалось в качестве универсального инструмента для готовки, сегодня мангал – это основа для приготовления мяса и шашлыка. Вокруг него проводятся выезды на дачу и природу, провожая осень, встречая приход весны и отмечая лето. И ниже мы предоставим чертежи мангалов из металла, их фото и видео по технологии изготовления мангалов разных конструкций.
Содержание материала
| Основа мангала. | |
| Вид мангала: обычный, стационарный, разборный. | |
Размеры и чертежи мангалов из металла, фото.![]() | |
| Подготовка будущей конструкции. | |
| Сварка мангала. | |
| Мангалы из металла с навесом. | |
| Покраска готового результата. |
Покупка мангала – дорогостоящее приобретение. Простая металлическая конструкция иногда стоит большие суммы, не оправдываясь качеством или его внешним видом. Поэтому намного лучше сделать мангал своими руками, используя чертежи, качественный металл, а также свои навыки.
Основа мангала
Мангал – это удобный инструмент приготовления пищи на жару. Он отличается весьма прочной конструкцией, но все ее особенности состоят в нюансах. Именно они позволяют быстро и легко готовить шашлыки и прочие блюда, предоставляя достаточное количество жара для кулинарии.
Среди основных преимуществ мангала стоит выделить следующие:
- подходящие размеры;
- отверстия для воздуха;
- глубину;
- выемки для шампуров.

Несмотря на то, что некоторые из них являются очевидными, все они требуются для качественной готовки. Что касается глубины мангала, то она позволяет набираться достаточному количеству жара и размещению мяса на такой высоте, где оно будет готовиться, но не гореть. Таким образом, Вы сможете положить необходимое количество древесины.
Отверстия для воздуха – особенно важный нюанс этих конструкций. Ведь именно из-за них мясо, которое приготовлено на мангале, сильно отличается от другого способа готовки на природе. Регулярный приток воздуха позволяет сохранить температуру и жар углей, в полной мере используя весь потенциал.
Внимание! Еще один нюанс мангала – поддон. Он исключает падение углей через специальные вентиляционные отверстия в дно и способствует частичной регулировке воздуха.
Для дальнейшего использования конструкции подбор размеров является крайне важным. Ведь готовка происходит на решетке или шампурах, поэтому нужно отталкиваться на ее средние размеры.
И последний нюанс – изготовление выемок для шампуров. Они позволяют разместить мясо в любой позиции, равномерно обжаривания его с разных сторон. Этот подход отыгрывает большую роль в приготовлении ароматного и сочного шашлыка без пригорания.
Но эти моменты всегда варьируются в зависимости от типа мангала.
Сразу стоит сказать, что разновидности таких конструкций многочисленные. Ведь каждый хочет найти оптимальный вариант, где готовить мясо и прочие продукты на жару. Сегодня выделяют следующие типы мангала:
- Обычный.
Обычный мангал имеет квадратную конструкцию. Хотя и имеют большой вес, могут переноситься. Часто он имеет съемные ножки.
- Разборный.

Легкий и небольшой разборный вариант, который Вы сможете возить в автомобиле. Он удобнее и проще, а также подходит для походов в лес.
- Стационарный.
Мощный мангал, созданный из металла. В основе могут лежать кирпичные блоки, обеспечивающие высокую надежность. Нередко такие мангалы могут дополняться стальными декорациями.
Выбор типа мангала очень ответственный при его самостоятельной постройке. Таким образом, Вы сможете определиться с задачами и выбрать лучший вариант. Однако рекомендуется выбирать обычный тип как самый универсальный выбор для дачников.
Внимание! Мангалы могут иметь разную форму. Отмечают круглые, прямоугольные, загнутые и другие типы, готовка на которых может несколько отличаться.
Чертежи мангалов из металла: фото разных типов
Перед тем как сделать соответствующие чертежи и выбрать размеры для будущего мангала, для постройки необходимо выбрать оптимальный вариант, который используется чаще всего.
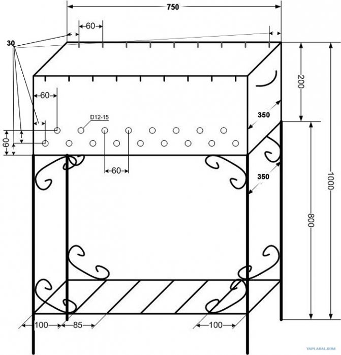
Нужно подбирать соответствующую ширину и высоту конструкции, и подходящую длину ножек. Чертеж обычного мангала предоставляется так:
Размеры, которые указаны в миллиметрах. На нем хорошо заметно, что общая высота мангала при длине ножек в 70 см и при длине 95 см. При этом глубина мангала будет составлять 25 см, что выступает оптимальным расстоянием от жара до шампуров.
Ширина мангала – 28 см, что несколько ниже среднего размера шампура. Длина составляет 54 см, нужно для равномерного распределения 9 порций над жаром.
Верхняя часть конструкции оборудована зазорами для шампуров. Так, можно равномерно распределить мясо и свободно фиксировать его при вращении, обеспечивая равномерную прожарку. Причем расстояние между зазорами должно быть в 6 см. Необходимо оставить место между крайними стенками и зазорами, чтобы мясо не касалось их, а также не пригорало.
Прекрасная продуваемость – важный нюанс. Здесь он достигается в результате отверстий диаметром 12-15 мм, находящийся на боковых стенках.
Отверстия находятся в нижней части листа металла в шахматном порядке. Они не нужны на передних боковых стенках.
Внимание! Представленная конструкция не подразумевает наличие поддона и отверстий на дне мангала. Это Вы легко исправите, приварив к днищу или ножкам небольшие уголки и выбрав соответствующий лист металла.
Как выполнить подготовку элементов будущей конструкции?
В качестве основы для мангала выступают металлические листы. Мы не рекомендуем использовать другие материалы, так как мангал обеспечивает достаточную стойкость конструкции к компактности и жару. Толщина металла должна составлять примерно 2-3 мм. Для работы Вам потребуются:
- Два листа металла размерами 280х250 мм и 240х250 мм.
- Один лист металла 540х280 мм.
- Уголки длиной в 700 мм и четыре металлические трубы.
- Сварочный аппарат.
- Дрель.
- Рулетка.
- Пила по металлу или болгарка.
Большинство людей отдают предпочтение другому варианту сборки.
Разные листы можно заменить большим металлическим полотном. Сделав надрезы, Вы сможете соединить конструкцию с незначительным количеством сварных швов. Таким образом, она получится более надежной.
Важно учитывать и дополнительные элементы, если конструкция отличается от приведенной выше. Ее можно дополнить поддоном, ручками для переноски, выемками для ножек и прочими деталями.
Прежде всего, нужно выполнить предварительную разметку. Отмечаются места сварки и крепежа, создаются специальные зазоры. Для этого применяется пила или болгарка. На этом этапе также создаются воздушные отверстия.
Внимание! Часто такую конструкцию изготавливают на арматурных ножках. Они ненадежные, так как конструкция будет шататься даже при незначительных нагрузках. Поэтому лучше заменить их на уголки.
Как выполнить сварку мангала своими руками
Сварка – лучшее решения для мангала.
Она способна переносить высокие перепады температуры и эффективное крепление болтами. Для этого применяйте сварочный аппарат, независимо от его типа. Затем конструкция поочередно фиксируется, и выполняется приварка по углам.
Внимание! Для более удобной сварки стоит использовать по бортам металлические уголки. Также они могут увеличить надежность швов, а также существенно утяжелить конструкцию.
Затем идет приваривание ручек и ножек. Они фиксируются по бортам (уголки) или ко дну конструкции (трубы). Нужно их надежно приварить, так как сам по себе мангал будет довольно тяжелым.
Внимание! Для фиксации ножек можно использовать не сварочный аппарат, а разборные элементы. Съемные ножки существенно уменьшат габариты мангала при его хранении.
По завершению работ нужно зашлифовать швы, а также проверить всю конструкцию на надежность.
Металлические мангалы с навесом: чертежи
Чтобы приготовить шашлыки при непогоде, можно использовать специальную конструкцию мангала. Это позволяет скрыть жар и мясо от осадков, но сама по себе такая конструкция непростая. Здесь предлагается два варианта действий:
- установка навеса непосредственно на мангал;
- установка дополнительного навеса, который не относится к мангалу.
Последний вариант будет более рациональным, так как он позволяет скрыть не только шашлыки, но и человека, который следит за их приготовлением. Первый вариант требует дополнительных расходов, так как основа должна выдерживать нагрузку от навеса.
При этом конструкцию советуем крепить на металлические углы. Это самый лучший вариант, так как он облегчает его сборку. Полотном для навеса чаще всего выступает профнастил. Он огнеупорный, никак не реагирует на перепады температур и отличается невысоким весом, что важно для облегченной конструкции.
Сборка навеса мало чем отличается от обычной, и требуется только защита огня и грамотное расположение основы.
Таким образом, Вы сможете спокойно готовить еду, не переживая за то, что можете зацепиться за арматуру.
Стоит отметить, что мангал из металла с навесом – это сложный вариант, который под силу опытным сварщикам. Здесь важно создать надежную конструкцию, вес которой будет равномерно распределен на основание. Для стационарных мангалов такой навес сделать намного проще, так как для них можно устроить несущий фундамет.
Конструкция с навесом может декорироваться металлическими элементами, как это Вы можете заметить на фото. Это не просто улучшит внешний вид, но и сделает навес более устойчивым и надежным.
Внимание! Если крыша установлена низко, оборудуйте ее специальным воздуховодом.
Покраска готового изделия
Важным вопросом в изготовлении мангала является покраска. Без нее нельзя обойтись, так как металл, используемый в конструкции, подвергается ржавчине, а пепел и сажа не улучшают ее внешний вид.
Для покраски применяются специальные составы, к которым предъявляются следующие требования:
- жаростойкость;
- устойчивость к перепадам температур;
- отсутствие вредных испарений.

Этим требованиям соответствуют такие покрытия:
- кремний-органические эмали;
- термостойкие краски различного назначения.
Нельзя не отметить то, что покраска мангала своими руками – довольно сложный и ответственный процесс. Они нуждаются в специальном обжиге, после чего и получают свои свойства. Предлагается еще один вариант – оксидирование. Он достаточно затратный в исполнении, но сделать его своими руками возможно.
Лучше выбирать черный цвет для краски. Поскольку рядом будет много пепла и сажи, остальные покрытия быстро мараются. На таком цвете налет будет абсолютно незаметен.
Внимание! Покраску стоит выполнять только снаружи. Внутри покрытие достаточно быстро слезает в результате высокого жара, да и никакого смысла в этом нет.
Сделать мангал своими руками достаточно просто.
Для этого Вам потребуется лист металла, сварочный аппарат и желание. Однако стоит придерживаться плана и схемы, так как в дальнейшем любые отклонения могут отобразиться на удобстве его использования. Но материалы нашего сайта «Ремонтик», среди которых особенно полезными будут чертежи металлических мангалов и их фото, а также видео по изготовлению, позволят справиться с этой задачей.
Алюминиевый котел — Etsy.de
Etsy больше не поддерживает старые версии вашего веб-браузера, чтобы обеспечить безопасность пользовательских данных. Пожалуйста, обновите до последней версии.
Воспользуйтесь всеми преимуществами нашего сайта, включив JavaScript.
Найдите что-нибудь памятное, присоединяйтесь к сообществу, делающему добро.
(
105 релевантных результатов,
с рекламой
Продавцы, желающие расширить свой бизнес и привлечь больше заинтересованных покупателей, могут использовать рекламную платформу Etsy для продвижения своих товаров.
Вы увидите результаты объявлений, основанные на таких факторах, как релевантность и сумма, которую продавцы платят за клик. Узнать больше.
)
40 металлических ям для костра и идеи для установки на открытом воздухе
Наступили холодные ночи, но нет необходимости спешить в помещение — одна из этих 40 металлических ям для костра может продлить сезон на открытом воздухе, обеспечив тепло и веселье.
Вы найдете один дизайн костровой ямы, который подойдет для вашего внутреннего дворика или на открытом воздухе.
Независимо от того, являетесь ли вы пуристом или предпочитаете более драматичный стиль, некоторые из этих самых крутых дизайнерских идей наверняка вдохновят вас. А что надежнее и проще в установке, чем металлическая яма. Большинство из них не требует никаких подготовительных работ — просто установите его на место, возьмите дрова и начните использовать.
Что касается топлива, у вас будет выбор между традиционными дровяными ямами, работающими на пропане или биоэтаноле. Время устроиться поудобнее у костра!
Лучшие идеи для костровых ям
Мы рассмотрим множество форм и размеров костровых ям, чтобы вы могли найти ту, которая лучше всего соответствует вашим потребностям.
1. Металлическая яма для костра для патио или заднего двора
Мы начинаем наш список с великолепной наружной костровой чаши Sunnydaze Northland. Его длина составляет 36 дюймов, и он работает на дровах.
Кроме того, он поставляется с грилем для барбекю, искровым экраном, поэтому все защищены, и кочергой для камина. Кроме того, у него есть собственный водонепроницаемый чехол для дождливых дней.
Яма для костра изготовлена из сверхпрочной стали и устойчива к ржавчине, поэтому даже если дождь застанет ее открытой, она не будет повреждена.
2. Идея наружного костра – могучий дуб
Нет, кострище явно не из дуба, но на нем есть металлическая скульптура величественного дуба. Более того, вы можете наслаждаться наблюдением за тем, как огонь горит сквозь этот красивый вырез. Мы нашли его на Etsy, и он доступен в нескольких размерах.
Яма для костра изготовлена из стали 16 калибра и очень проста в сборке. Он состоит из четырех частей, которые можно соединить с помощью прилагаемых болтов и барашковых гаек. Еще одна интересная вещь, когда вы заказываете в этой компании, заключается в том, что вы можете настроить две стороны своей ямы для костра с любым дизайном, который вы хотите.
3. Идея костровой ямы из «Властелина колец»
Для фанатов Толкина эта яма для костра станет прекрасным украшением их дворов. Что делает эту костровую яму идеальной для фанатов «Властелина колец»? Ну, на нем те же эльфийские надписи, что и на Едином кольце. И когда в яме горит огонь, вы сможете видеть сквозь надпись, создавая впечатление, что она светится, как кольцо Фродо.
Люди, продающие это на Etsy, позволяют вам выбрать толщину стали, а также один из пяти размеров для вашего очага. Это просто замечательное дополнение.
4. Стальная яма для костра — Луна и звезды
Эта удивительно выглядящая яма для костра представлена на Amazon в нескольких темах — звезды и луна, бамбуковое плетение или пламя — каждую из которых можно вырезать по бокам. костровой ямы. Дровяная яма для костра выглядит совершенно потрясающе и прекрасно работает в вашем саду или на пляже. Так как он не слишком большой, вы даже можете взять его с собой.
Помимо купольного щита, он также оснащен грилем и кочергой, так что на нем можно даже приготовить ужин.
Это такое потрясающее произведение!
5. Идея костровой ямы в патио – Bali Pit
Далее у нас есть великолепная яма для костра на дровах, которая идеально подходит для поздних вечеров, а также для приготовления пищи на гриле. Это просто приятное дополнение к любому двору.
В отличие от многих других костровых ям, которые мы видели, решетка крепится на шипе, и вы можете поворачивать ее, как вам нужно. Яму легко собрать, и она достаточно мала, чтобы ее можно было взять с собой в поход.
6. Идея для костра в форме конуса
Urbanfire от Modfire (вверху) — ультрасовременная яма для костра и произведение искусства. Сделанный вручную из натуральной стали, он доступен в различных вариантах отделки: от натурального металла до ярких цветов (синий, красный, оранжевый и т. д.) или роскошной меди. Этот впечатляющий конусообразный дизайн высотой 48 дюймов (около 120 см) привлечет всеобщее внимание. Он работает на дровах или пропане.
7. Высокая открытая костровая яма
Katan (вверху) в переводе со шведского означает палатка-вигвам, и голландский производитель Harrie Leenders вдохновился на создание этой особой конструкции пирамидальной костровой ямы.
Изготовлен из кортеновской стали, сначала имеет вид ржавого металла, но со временем и под дождем окисляется и становится довольно черным. Внизу есть практичный отсек для хранения дров.
8. Конструкция металлической ямы для костра
Pharos — это еще одна коническая конструкция костровой ямы / камина от Leenders (вверху), но она также мобильна и идеально подходит для использования на открытом воздухе. Его можно легко перемещать на твердых колесах по патио или саду, чтобы найти наиболее подходящее место для сезона. Он изготовлен из литого алюминия толщиной 6 мм и доступен в нескольких цветовых сочетаниях. Какой классный у него дымоход!
9. Крутая идея для костра
Мы не знаем, кто делает эту красную яму для костра, но это определенно один из самых крутых дизайнов конусов. Вы можете попытаться узнать больше в источнике.
10. Металлическая яма для костра Хранение дров
Zero by AK-47 — это современный круглый камин, созданный для того, чтобы его окружали люди.
145 см в диаметре (4,75 фута), он состоит из центральной металлической ямы для костра и внешнего места для хранения дров и места для сидения. Он станет прекрасным украшением больших общественных мест, а дома, в окружении друзей, станет более интимным!
11. Высокая костровая яма
Harrie Leenders становится более современной благодаря Spot (вверху), компактной уличной костровой яме, которую также можно использовать в качестве печи и которая подходит даже для самых маленьких открытых пространств. Функциональный объект дизайна 3-в-1, Spot сочетает в себе яму, хранилище для дров и дополнительный поднос для обслуживания на клипсе. Идеально, чтобы насладиться напитком у костра. Ваше здоровье!
Spot fire от Leenders — идеальный аксессуар для активного отдыха всей семьей.
12. Подвесная яма для костра
Это самая крутая идея для костра, которую вы когда-либо видели? Он висит! Был найден на чьем-то заднем дворе в Венеции, Лос-Анджелес, Калифорния.
13.
Яма для костра в ведьмином стилеЭтот большой подвесной костер, получивший название «Хозяин ранчо», предназначен для тех, кто хочет самого лучшего, как утверждает его создатель Ковбой Котел.
Подвесные металлические ямы для костра изготавливаются либо из чугуна, либо из толстой штампованной стали и рассчитаны на несколько поколений. Вы также можете использовать подвесную чашу котла в качестве гриля, и это отличный аксессуар для развлечения ваших гостей. Каждая яма для котла поставляется в комплекте с рамой для штатива, подвесной цепью, крючком и штифтом в сборе, чашей для котла, съемной решеткой для огня и грилем для приготовления пищи. Источник.
Хозяин ранчо может быть самым большим котлом, но не единственным. Они бывают 4 разных размеров — посмотрите на таблицу выше, чтобы выбрать тот, который лучше всего подходит для вашего патио или заднего двора. Источник.
14. Яма для костра с чашей Идея
Ямы для костра — одни из наших фаворитов. Что может быть более эстетичным и иметь удобную форму для безопасного разведения огня, чем дизайн чаши.
Особенно большая яма, подобная той, что была найдена в этом доме выходного дня в долине Напа от Jim Jennings Architecture. Эта огромная чаша, разработанная Эрин Мартин, — настоящая мечта. Вся обстановка такая простая и в то же время уютная, сфотографирована Марион Бреннер.
15. Идея наружного костра
Использование чугунного умывальника в качестве костра кажется отличной идеей — по крайней мере, это сработало для одного джентльмена. Он большой, около 2,5 футов в диаметре, и выглядит круто. Источник.
16. Деревенское место для костра Идея
Еще одна потрясающая обстановка с металлической чашей для костра в качестве центрального элемента, деревенская и даже причудливая – обратите внимание на эти вырезанные сиденья. Вам они ничего не напоминают? Снято Радостиной — посмотрите ее великолепные работы здесь.
17. Идея заглубленного костра
Вышеупомянутая идея установки заглубленного костра пришла из Йоханнесбурга, Южная Африка – источник. Какая умная идея и потенциально интересный проект «сделай сам» — меньшая и более мелкая металлическая чаша помещается на бетонный постамент, создавая центральный огонь в середине круглой выемки в земле и с бетонной подпорной стенкой.
18. Чугунная яма для костра «Цветок»
Чаша, изготовленная путем сварки дисковых лопастей трактора-пахотника. Эта яма для костра, сделанная своими руками, отлично подходит для разведения костра на заднем дворе. Выглядит почти художественно. Источник.
19. Металлическое кольцо для костра
Если вам нравится внешний вид меди, Hayneedle предлагает эту медную яму для костра CobraCo с крышкой. Это привлекательный аксессуар для дома, красиво отчеканенный вручную, чтобы придать ему блестящий вид. Он поставляется с защитным виниловым покрытием для поддержания чистоты и имеет диаметр 30 дюймов.
20. Ямы для костра в современном стиле
Приведенный выше современный гриль для костра Langgrill можно приобрести в компании Connox. Это немецкий дизайн с длинной чашей и минималистичным внешним видом из нержавеющей стали, размером 45 см в ширину и 9 см.5 см в длину.
21. Идеи для места для костра
Иногда лучше меньше, да лучше, и это верно для места для костра Bella Vita из нержавеющей стали (вверху).
Художник по функциональной стали Рик Виттриг сделал этот круглый современный камин не требующим обслуживания, поэтому он не требует усилий и дарит моменты полного расслабления тем, кто сидит вокруг него. 46 дюймов в диаметре, в нем достаточно дров для горения в течение всего вечера!
22. Яма для костра в современном дизайне
Еще один современный дизайн чаши для костра с неглубокой круглой стальной чашей на металлической подставке – отличный элемент декора для современного дома. Чаша диаметром 63 см отшлифована вручную, чтобы предотвратить образование естественной ржавчины с течением времени, а ножки из нержавеющей стали также обработаны вручную.
23. Футуристическая яма для костра Идея
Вышеупомянутая мобильная яма для костра под названием Eclypsya представляет собой современный круглый дизайн Бенджамина Меснарда и сделан Arkiane. Он выделяется необычным дизайном и мобильностью. Просто выкатите его наружу и наслаждайтесь огнем на своей террасе в полной безопасности, так как пламя биоэтанола защищено стеклом с обеих сторон.
Эта красивая яма, вдохновленная кочевниками пустыни, которые разводят костер, обязательно займет постоянное место в вашем образе жизни!
24. Геометрическая конструкция металлической костровой ямы
Простой квадратный костровой костер в качестве самодельного проекта из четырех листов 40″ x 20″ горячекатаной стали 12 калибра – вот руководство.
25. Оригами Металлическая яма для костра
Геометрическая яма для костра Plodes (вверху) напоминает нам оригами. Дизайн разработан Джоном Полом Плаучем из Plodes Studio, который занимался проектами для офисов Google. Доступен в двух размерах и двух металлах — низкоуглеродистой стали A36 или стали Corten. Купив дополнительную решетку или кедровую столешницу, вы можете превратить эту яму в гриль или стол.
26. Минималистская металлическая яма для костра
Конструкция ямы для костра аналогичной формы доступна на Etsy. Благодаря горячекатаным стальным бортам 14 калибра и чаше для пожаротушения 10 калибра плавниковая яма рассчитана на длительный срок службы.
27. Геометрическая пожарная яма
Немного отличающаяся версия двух вышеупомянутых геометрических дизайнов, а также несколько более эстетически приятная, это современная наружная каминная решетка Питера Кейлбаха, дизайнера из Великобритании. Он будет красиво смотреться в вашем саду и может использоваться как гриль.
28. Большая яма для костра
Говоря о необычной геометрии… вот комбинация металлической ямы для костра и барбекю под названием Decahedron. Имя говорит само за себя.
29. Arty Fire Pit Idea
Изготовленная из переработанной стали скульптурная композиция The Great Bowl O’ Fire. Эта яма для костра никогда не перестанет удивлять, насколько пропорционально она спроектирована. Чаша диаметром 37 дюймов кажется горящей, даже когда на самом деле огонь не горит! Потрясающий на уровне пола, он приобретает «олимпийский» вид, когда поднимается на пьедестал.
Одними из самых известных художественных ям для костра на рынке сегодня являются сферы для костра, вырезанные вручную художницей Мелиссой Крисп.
У Мелиссы много красивых дизайнов, мы только что выбрали 4, которые, по нашему мнению, являются одними из самых удивительных произведений искусства от этого дизайнера. Каждый дизайн является единственным в своем роде и поставляется с пронумерованной металлической пластиной для подлинности. По умолчанию они работают на дровах, но могут быть преобразованы в ямы для сжигания газа.
30. История любви Искусство Стальная яма для костра
Вышеупомянутая сфера для костра Winter Woods от Мелиссы Крисп имеет романтический оттенок. Для влюбленных не найти лучшего предмета, чтобы наслаждаться звездными ночами у костра.
31. Яма для костра на берегу озера Идея
Это настоящее произведение искусства — чаша для огня «Земля и небо», имеющая простую металлическую чашу на основании из скалистой ветки дерева и имеющая диаметр 53–54 дюйма.
32. Идея скульптурной ямы для костра
Сфера для костра Hidden Angel вполне может стать одной из самых красивых ям, которые мы когда-либо видели.
Огненная сфера Скрытого Ангела представляет собой двух ангелов с широко раскрытыми крыльями, как будто они защищают вас от огня. «Эта скульптурная чаша для огня красива, даже когда она не освещена, и будет ошеломляющей в любом саду. Крылья ангела обвивают стенки чаши и встречаются, замыкая круг». Источник.
33. Идея костровой ямы Fall Leaf
Этот очень сбалансированный, эстетически приятный дизайн (вверху) представляет собой сферу костра Autumn Sunset Leaf от Melissa Crisp. Эта уникальная чаша для костра ручной работы имеет диаметр 37 дюймов и может стать отличным украшением патио даже без огня.
34. Яма для костра «Цветок»
Выше находится экзотично выглядящий огненный предмет «Лотос», изготовленный вручную из нержавеющей стали и сжигающий газ.
35. Металлическая яма для костра из растения агавы
Созданная по образцу растения агавы, эта искусная конструкция кострища изготовлена из необработанной стали, поэтому вы можете наблюдать, как она образует уникальную патину.
36. Кольцо для костра
Простое металлическое кольцо для костра часто может стать лучшей идеей для установки на открытом воздухе. Нам нравится негабаритный круглый дизайн — это кажется таким естественным, чтобы место для костра было круглым и большим.
37. Металлическое ограждение Стальная яма для костра
Это переносное кольцо для костра может быть отличной идеей для кемпинга.
38. Металлическая яма для костра с вырезом
Выше расположено очаровательное кольцо для костра для уютной деревенской обстановки – источника.
39. Цветочная чаша для костра
Это классное декоративное металлическое кольцо для костра легко впишется в большинство пейзажей. Он состоит из стального вкладыша и декоративного верхнего кольца и предназначен для устройства костровища из подпорных стеновых блоков.
40. Стол для костра
И, наконец, пара необычных и аккуратных идей для уличной обстановки – столы для костра.
Уличный стол со встроенным холодильником и местом для костра.


Под него и сделайте вырез.