Схема водонагревателя термекс 50 литров: Как подключить водонагреватель Thermex своими руками – схема подключения
Как подключить водонагреватель Thermex своими руками – схема подключения
Рассмотрим, как подключить водонагреватель Thermex, когда он уже установлен. В начале всех работ перекрываем вентили на вводе воды в квартиру. Нам понадобится набор ключей, пакля и герметичная паста, дрель, а также в зависимости от материала труб болгарка, резак для пластиковых труб или паяльник для пропиленовых соединений.
Также нужны будут трубы, три вентиля, клипсы для крепления, дюбеля и саморезы, обратный клапан (может идти в комплекте с аппаратом Термекс), тройники. Вначале продумываем схему подключения и делаем приблизительный рисунок на бумаге.
Далее переносим уже реальные размеры линиями, по которым будут проходить трубы, на стену с помощью карандаша или маркера. По сути, мы заводим холодную воду в бойлер и выводим нагретую в стояк с горячей водой.
Первым делом врезаем тройники в стояки горячей и холодной воды. Это легко сделать своими руками, если у вас металлопластиковые или пропиленовые трубы.
Если же у вас старые металлический водопровод, и вы его сейчас не планируете менять, болгаркой вырезаем кусок трубы под размер тройника, нарезаем на концах резьбу плашкой и накручиваем латунный тройник с накидными гайками. Для герметичности используем резиновые прокладки.
Резиновый уплотнитель для бойлера ТермексЕсли вы устанавливаете водонагреватель в частном доме, то, скорее всего, у вас нет труб горячей воды. Это упрощает задачу, нужно будет только провести канал от бойлера к смесителю. Если у вас несколько водоразборных точек, то с помощью тройников делается необходимое количество ответвлений.
Дальше подводим трубы максимально близко к водонагревателю, оставив место для гибких шлангов. Закрепляем их, просверлив в стене отверстия и поставив клипсы соответствующего диаметра на дюбеля с саморезами. В моделях Thermex Hit H 10-0 и Thermex Hit 10 U может быть как нижняя, так и верхняя подводка.
На обе трубы монтируем краны. На конец ввода холодной воды ставим сначала обратный клапан, а потом дополнительный тройник с краном. Если вы покупаете предохранительный клапан самостоятельно, важно соблюсти характеристику давления, соответствующую модели водонагревателя.
Эти данные написаны в инструкции по эксплуатации к прибору. При монтаже обращаем внимание на стрелку направления потока, которая нарисована ни клапане. Дополнительный тройник с краном нужен для того, чтобы во время технического обслуживания сливать воду с бака или пользоваться запасом жидкости в случае отключения централизованного водоснабжения.
Сливной клапан бойлера
Устанавливаем гибкие шланги. На корпусе есть пометки, кольцом синего цвета помечен ввод холодной воды, а красного вывод горячей. Гибкие шланги берутся дорогие хорошего качества.
Не рекомендуется делать подводку без шлангов, так как в этом случае все перепады давления будут наносить удары по баку. Для дополнительной безопасности на вводе ставится редуктор выравнивания давления.
Он регулируется на давление чуть меньшее, чем указано в инструкции.
Намного проще подключать проточные водонагреватели, такие как Thermex 350 Stream и Thermex 500 Stream. Они предназначены для одной водоразборной точки и требуют только подвести холодную воду и вывести нагретую к смесителю.
На этом подключение заканчивается, осталось проверить надежность соединений и настроить параметры бойлера. Открываем вентиль на входе холодной воды (при этом кран горячей оставляем закрытым). Включаем смеситель с горячей водой.
В бак начнет набираться жидкость. Внимательно осматриваем все узлы на предмет протечек. Если где-то появляются капли, закрываем воду, раскручиваем узел, меняем паклю и собираем его обратно.
Для заполнения бака на 50 литров понадобится примерно 5 минут, для 80 литров около 8 минут. Когда из смесителя пойдет вода, это будет означать, что бак полный и можно включать прибор. Включаем бойлер в электросеть.
Если у вас модель с электронной платой управления, например, Thermex Flat Plus IF 30 V или Thermex Stainless G5, проводим первичную настройку.
На панели управления располагается три кнопки, три индикаторных лампочки и LDC дисплей.
Нажимаем кнопку включения, обозначенную «ON/OFF». Второй кнопкой Power Selector выбираем нужную мощность, а третей выставляем температуру. Она отобразится на экране, а через две секунды поменяется на актуальную.
В более простых моделях без электронной платы управления, таких как Thermex ER 50 V, настройка механическая. Просто выставляем ручкой уровень нагрева и включаем красными выключателями один или два ТЭНа.
Предлагаем посмотреть видео о подключении бойлера Термекс в квартире:
Принципиальная электрическая схема водонагревателя Термекс — Все о печи в доме
Подключение водонагревателя должно производиться специально обученным специалистом. Это связано с тем, что при выполнении таких работ необходимо соблюдать пожарную безопасность и правила установки электрооборудования (ПУЭ).
Назначение нагревателя
Нагреватель Thermex сделан при помощи современной технологии сборки с применением высококачественных материалов. В нем имеется устройство защитного отключения (УЗО), которое обеспечивает безопасность во время эксплуатации. Термекс соответствует международным стандартам и требованию ГОСТ Р МЭК 60335-2-21-99. В некоторых моделях нагревателей установлен серебряный анод. Об этом указывается в инструкции к водонагревателю.
Прибор используется для нагрева проточной воды в бытовых и производственных помещениях. Он очень надежен и экономичен.
Для нормальной работы водонагревателя Термекс давление в системе не должно превышать 0,6 МПа.
Иначе вода не успеет нагреваться до нужной температуры. В зимнее время использовать Thermex следует в хорошо отапливаемых помещениях. Все модели бытовой техники подключаются к источнику питания напряжением 220 В.
В комплект поставки нагревателя Термекс входят:
- Автомат УЗО.
- Предохранительный клапан.
- Инструкция по эксплуатации.
- Анкеры для крепежа.
Упаковка.
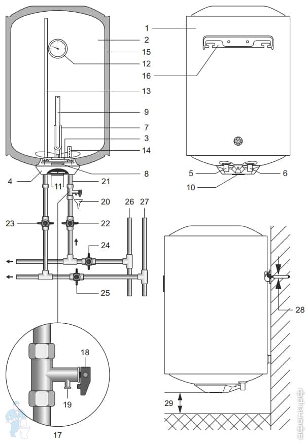
Принципиальная схема водонагревателя показана на рис. 1. Из нее видно, каким образом происходит нагрев жидкости в технической конструкции. Корпус нагревателя Термекс сделан из прочного пластика. Внутренний бак изготовлен из низкоуглеродистой нержавеющей стали. Благодаря этому Thermex имеет отличную коррозийную стойкость и большой срок эксплуатации. Пространство между пластиковым корпусом и стальным баком заполнено теплоизолирующим материалом.
Для ремонта неисправности ТЭНа фланец, на котором он удерживается, снимается. На передней панели изделия установлен датчик терморегулятора с термостатом. С помощью этого прибора Термекс поддерживает установленную температуру. Работа происходит в автоматическом режиме. Необходимое значение устанавливается регулятором.
Как пользоваться прибором, указано в инструкции. Устройство защитного отключения смонтировано на питающем кабеле. Он срабатывает при утечке тока 0,2 мА. Упрощенная электрическая схема нагревателя представлена на рис. 2, где элемент безопасности — термозащита. Чертеж можно использовать для поиска неисправности в работе оборудования.
Вернуться к оглавлению
Установка и подключение нагревателя
Рисунок 2. Упрощенная электрическая схема нагревателя.Нагреватель монтируется на стену недалеко от водопровода. Устанавливать Thermex следует над трубами водоснабжения. Это необходимо для того, чтобы конденсатная влага, которая образуется на трубах, не капала на Термекс. Для врезки в водопровод лучше всего использовать шланги из металлопластика. Они достаточно эластичные, при сгибании не боятся поломки.
При подключении прибора к электросети нужно правильно подобрать сечение питающего провода. Если мощность бойлера составляет, к примеру, 6 кВт, то провод подбираем следующим образом.
Из практики известно, что 1 кВт имеет 4 ампера. В нашем случае на бойлер поступает 24 А. Известно также, что провод сечением 1 мм² проводит 10 А тока. Из этого следует, что минимальное сечение питающего кабеля должно быть 2,5 мм². Кабель меньшего сечения будет причиной неисправности в работе оборудования. В качестве защиты данной цепи от короткого замыкания устанавливается ближайший по номиналу автомат — 32 А. Номинал этого оборудования указывается в инструкции по эксплуатации.
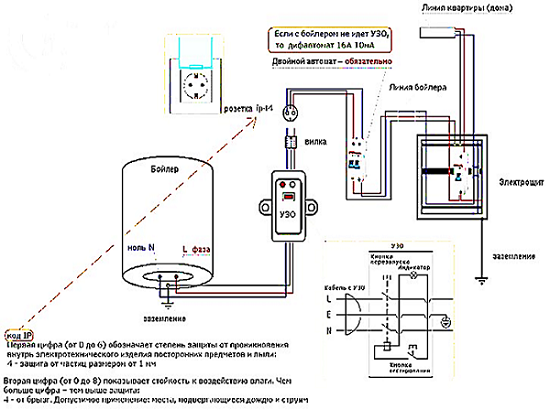
Электрический нагреватель должен иметь надежное заземление. Это необходимая мера безопасности. Провод для заземления Thermex должен быть толще питающего кабеля. Заземляющий провод ни в коем случае не должен соединяться с нулевым проводом. Иначе электрическая схема водонагревателя не будет работать. При попытке включения электрооборудования будет срабатывать устройство защитного отключения.
Такая ошибка электромонтажа встречается довольно часто. Соединение заземления с нулем возможно только за пределами рабочей схемы.
Вернуться к оглавлению
Основные причины поломки оборудования
Причиной неисправности обогревателя Thermex чаще всего являются следующие обстоятельства:
Рисунок 3. Принципиальная схема электромонтажа.- Поломка ТЭНа. Это может случиться в том случае, когда во время подключения бойлера в системе водоснабжения слишком малое давление. Защитные датчики при этом не срабатывают. ТЭН в этом случае перегревается и его спираль выходит из строя.
- Забивка грязью внутренней системы нагревателя Термекс. Чтобы подобного не произошло, нужно чаще промывать фильтр очистки воды.
- Износ электрических элементов. Сюда в первую очередь относится перегрев контактов. Со временем все контакты подключения бойлера ослабевают и начинают греться. Для того чтобы они не разрушались, их необходимо периодически подтягивать. Хотя в инструкции такого и не сказано, но это весьма важный момент.

Чтобы не возникали вышеназванные поломки, используя нагреватель Thermex, необходимо соблюдать правила технической эксплуатации. Периодический осмотр рабочих узлов оборудования следует производить с момента подключения бойлера. Это будет способствовать увеличению срока его работы. Схема подключения электрического нагревателя должна выполняться одним составом провода. Соединения медных проводов с алюминиевыми проводами недопустимы. Связано это с тем, что они имеют различную электропроводность, и места их соединений будут греться.
http://1popechi.ru/youtu.be/GTU6hAYOF2k
Вернуться к оглавлению
Наиболее востребованные устройства
Самым популярным нагревателем является Thermex System Manual. Он соответствует стандарту ГОСТ Р 52161.2.35-2008. Его мощности хватает, чтобы нагревать воду сразу в трех точках. Электрическая схема водонагревателя защищена двухполюсным автоматом с плавким предохранителем. В комплекте поставки этого оборудования имеется техническое описание прибора и инструкция по его эксплуатации.
В ней также даны рекомендации по способу подключения обогревателя к системе водоснабжения. Инструкции к водонагревателям помогают производить их установку и обеспечивают информацией о правильном использовании.
Также большим успехом пользуется проточный обогреватель Thermex Stream Manual. Электрическая схема разъясняет принцип работы оборудования. Из нее видно, какие именно детали обеспечивают основной рабочий процесс. Кроме того, указан порядок подключения каждого элемента.
http://1popechi.ru/youtu.be/br96qMimMo4
Во время покупки товара продавец-консультант объяснит, как работает электрическая схема, и подскажет, как выполнить необходимые подключения. Однако монтаж все же следует производить с участием квалифицированного специалиста, который выполнит работы быстро и качественно, соблюдая все инструкции, относящиеся к требуемым нормам электробезопасности.
Схемы для подключения водонагревателя Термекс своими руками
В этой статье рассказывается, как без особых усилий, установить и подключить различные модели электроводонагревателей Термекс своими руками.
Ну вот, наконец-то вожделенная сияющая покупка у вас дома. И остается всего ничего: установить и начать пользоваться. Ну что-ж, пора приниматься за дело.
Как прикрепить
Установка водонагревателя должна начинаться со вдумчивого и скрупулезного изучения инструкции. После чего его нужно правильно установить на стену.Модели водонагревателей различаются количеством анкерных крюков, у тех что емкость поменьше их три, а в мощных – пять.
Устанавливать водонагреватель нужно вертикально и с минимальными перекосами. При монтаже рекомендуется применить строительный уровень. Тяжелые водонагреватели должны крепиться на капитальные стены с полной уверенностью, что они выдержат этот вес. Панельный дом – это хорошо.
Если же дом кирпичный, в таком случае нужно убедиться в надежности кладки и, если есть сомнения, укрепить. Разделать швы, после чего снова промазать раствором. Есть вариант, в котором стены пробиваются насквозь и с другой стороны закрепляются металлическими пластинами.
Если все же имеются некоторые сомнения в надежности несущей стены, то лучше будет предварительно изготовить металлический каркас в виде рамки, и уже к нему приваривать анкерные крюки. Эту конструкцию следует прикрепить к стене, а уже на нее навешивать водонагреватель.
Примите к сведению: монтаж должен делаться с таким расчетом, чтобы был свободный доступ к аварийному выключателю.
В линейке водонагревателей Термекс имеются компактные модели, позволяющие произвести установку в небольшом пространстве, свойственном квартирам старого типа. Есть и такие модели, позволяющие устанавливать агрегат под кухонную мойку. Но все-таки лучше будет, если кухонный смеситель подключен при помощи отдельной трубки.Как подсоединить к воде
Схема подключения водонагревателя к водоснабжению. (Для увеличения нажмите)Необходимо, чтобы вода соответствовала хотя бы минимальным требованиям, предъявляемым производителем водонагревателя.
Если есть сомнения в качестве воды, то лучше всего установить очистительный фильтр.
В таком случае срок эксплуатации водонагревателя несколько увеличится.
Желательно для подведения воды применить медную отожженную трубу в оплетке. Такая труба легко поддается формообразованию и ей не страшны перепады температур. И прочность у таких соединений очень высокая, так что краны для перекрывания воды можно будет смонтировать на самом баке.
После установки водонагревателя на стену, к нему подключают холодную воду. Комбинированный клапан, который входит в комплект водонагревателя, монтируется на патрубок, идущий к водонагревателю (синего цвета).
Замечание специалиста: обыкновенный обратный клапан ни в коем случае не рекомендуется.
Если же создалась безвыходная ситуация с отсутствием необходимого клапана, тогда на обыкновенный клапан наворачивают еще и предохранительный, для того, чтобы сбрасывать лишнее давление, создающееся бойлером.Если клапан устанавливается собственноручно, необходимо заметить, что не нужно слишком сильно затягивать его на резьбе, достаточно четырех оборотов.
Это нужно для профилактики срыва резьбы на патрубке.Обязательное условие – это герметизация места соединения. Клапан может понадобиться и для слива воды из нагревателя в случае ремонта. Хотя, слив воды через клапан – долгое дело. Лучше будет, конечно, если позволит место, между клапаном и патрубком вмонтировать тройник. Тогда сливать воду будет гораздо удобней.
Далее патрубок, предназначенный для горячей воды, соединяется либо со смесителем, либо с трубой, которая ведет к крану с горячей водой. Есть такие модели водонагревателей, в который врезан третий патрубок. Но по схеме подключения он не используется. В таком случае его нужно просто надежно заглушить.
Электрическая подводка
Электрическая схема подключения водонагревателя. (Для увеличения нажмите)Согласно инструкции, прежде чем подключить аппарат к электричеству, необходимо заполнить его водой.
Обязательно соблюсти расположение фазы относительно электросхемы подключения.
После подключения сантехнических коммуникаций, бойлер нужно наполнить водой, и лишь после этого можно подключать аппарат к сети электрического тока.
Правила подключения водонагревателя такие же, как и для стиральных машин.
Если аппарат не запускается, необходимо перепроверить все соединения согласно схеме подключения и, если необходимо, исправить ошибки подключения. В противном случае, возможно придется пригласить специалиста.
Это важно: по окончании монтажных работ, проверки надежности закрепления, подключения всех соединений как электрических, так и гидротехнических, выполняется контрольный запуск для окончательного тестирования правильности всех подключений.
Водонагреватели, у которых мощность не более 2 кВт, допускается подключать к уже имеющейся розетке, при условии, что она заземлена и в дальнейшем будет использоваться лишь для данного агрегата. Нельзя применять удлинители, тройники и так далее.Ну вот, наконец-то агрегат заработал, и горячая вода тонкой струйкой потекла из крана. Термекс все сделал для комфорта вашей жизни. Ну и конечно, свои умелые руки, куда же без них!
Смотрите видео, в котором опытный пользователь подробно показывает, как произвести установку и подключение водонагревателя Термекс:
подключение Термекс своими руками, видео, электрическая схема 80 и 50 литров, как подключить
Схему водонагревателя можно легко найти в интернете Монтаж бойлера начинается с внимательного изучения инструкции, оно должно быть вдумчивым и скрупулезным. После этого необходимо произвести правильную установку водонагревателя на стенку. Подключением должны заниматься исключительно обученные специалисты, так как выполнение такой работы нуждается в соблюдении правил пожарной безопасности и правильном монтаже электрического оборудования.
Назначение аппарата: схема водонагревателя Термекс
Бойлер марки Thermex создан с помощью современных технологий и высококачественного материала. Данный производитель встраивает в модели устройство для защитного отключения, которое может обеспечить полную безопасность в процессе эксплуатации. Водонагреватели Термекс соответствуют всем международным стандартам.
Водонагреватель Термекс обладает отличными эксплуатационными и эстетическими свойствами
Техника используется для того чтобы нагреть проточную воду для использования в быту и производстве. Данная модель является очень надежной и экономичной.
В комплекте бойлера находятся 4 составляющих:
- Клапан предохранительного типа;
- Инструкция по использованию;
- Анкера для крепления;
- Упаковка
Схема бойлера показывает, каким образом осуществляется подогрев воды в технике. Внешняя оболочка бойлера создана их прочного пластика, бак который расположен внутри в основном делают из нержавеющей стали низкоуглеродистого типа. И благодаря этому водонагреватели данного типа обладают антикоррозийным свойством и долгим сроком эксплуатации. Что касается расстояния между корпусом и баком из стали, то оно заполняется материалом для теплоизоляции.
Подключение водонагревателя Термекс к воде
Говоря о подключении водонагревателя к водоснабжению, нужно сразу уточнить, что она должна соответствовать хотя бы минимальным требованиям, которые выдвигает производитель.
Если вы сомневаетесь в качестве вашей воды, то лучше установить водяной фильтр. Только в этом случае вы сможете продлить срок эксплуатации вашего бойлера.
Что касается самого подключения к воде, то для этого желательно приобрести медную отожженную трубу. Она способна поддаваться формообразованию и не боится перепадов температуры. Прочность такого соединения высокая, поэтому краны для перекрытия воды можно будет установить непосредственно на баке. После того как будет проведен монтаж бака на стенку, можно подключить холодную воду. Клапан для этого входит в комплект и должен быть установлен на патрубок, который идет к бойлеру (чаще всего он обозначен, синим цветом).
Клапан зачастую идет в комплекте с водонагревателем, однако его можно купить и отдельно
Специалисты утверждают, что использовать обычный обратный клапан крайне нежелательно. Если же ситуация безвыходная и клапан отсутствует, то на стандартный клапан нужно будет установить предохранитель, который сбросит лишнее давление создаваемое бойлером.
Если вы устанавливаете клапан своими руками, то затягивать резьбу сильно нельзя, достаточно будет 3-4 оборота.
Такой подход убережет от возможного срыва резьбы. Обязательным условием будет создание герметизации в том месте, где создано соединение, так как такой клапан понадобится для слива воды из бойлера в случае аварийной ситуации. И хотя слив через клапан, это отдельная тема, лучше будет установить тройник, в таком случае слив воды будет более комфортным. Если вы изучите некоторые модели этого производителя, то увидите, что на схеме часто обозначают врезанный третий патрубок. И хотя в схеме он указан, используется он очень редко и потому на него потребуется поставить глушитель.
Установка водонагревателя Thermex
Бойлер во время установки на стену должен быть расположен близко к водопроводу. Водонагреватель Thermex чаще всего располагают над трубами, это делается для того, чтобы конденсат, который скапливается на трубах, не капал на прибор, таким образом, вы сможете избежать многих поломок.
Для того чтобы подключить бойлер к электричеству, потребуется найти сечение провода, который будет питать технику. Например, если мощность бойлера будет составлять 6кВт, то минимальное сечение кабеля который будет питать должна быт не около 2,5 мм2 .
Если будет выбран кабель с меньшим сечением, то вскоре вы столкнетесь с рядом неисправностей в работе.
Устанавливать водонагреватель нужно в том месте, где он не будет мешать свободному передвижению по помещению
Бойлер должен быть надежно заземлен. Это обязательная мера безопасности, которую требует электрическая часть. Провод, который выбирается для заземления, должен быть немного тоще питающего и ни в коем случае не соединяться с нулевой фазой. В противном случае электросхема аппарата не будет работать, а во время включения в водонагревателе будет срабатывать защитный механизм и он отключится.
Крепление водонагревателя Термекс к стене
Для того чтобы разобраться с креплением к стене, нужно рассмотреть отдельный пример, например водонагреватель на 100 л.
Установку такой техники нужно начинать с подбора нужного места для монтажа.
Подбор места включает в себя несколько требований, а именно:
- Нагреватель должен быть расположен рядом с водными и электрическими коммуникациями. Связано это с тем, что по трубам будет поступать вода, а электричество должно нагревать ее.
- Идеально, если установка будет сделана в шкафу сантехнического типа. Это даст возможность убрать с глаз установку и при этом сэкономить необходимое пространство.
- Если установка будет произведена на кухне, то перед этим нужно подготовить достаточное количество свободного места. Конечно, это необходимо в том случае если вы не приобрели компактный бойлер, специально рассчитанный для кухни.
- Старайтесь не устанавливать бойлер над ванной, так как это может привести к неудобствам в эксплуатации.
- Следите за уровнем влажности в помещении. Из-за повышенной влаги большинство приборов выходят из строя.

- Перед тем как проводить монтаж на стену, проверьте ее прочность. Стена, предназначенная для крепления, должна быть повышенной устойчивости. Идеальным вариантом станут строения из кирпича, бетона или других прочных блоков.
Очень важно подобрать прочную стену, так как бойлер в основном обладает большим весом, а в процессе набора воды он станет весить еще больше. Вся эта нагрузка будет направлена на стену, естественно деревянная стена такой нагрузки выдержать не сможет. А о том, как происходит правильное подключение и настройка бака на 100 литров, вы можете узнать из видео.
Подключение водонагревателя Термекс своими руками (видео)
В заключение следует сказать, что схема бойлера может рассказать вам о том, по какому именно принципу происходит работа всей системы. Кроме того немало важной окажется схема для создания правильного монтажа. А о том, как его осуществить, какие правила нужно обязательно соблюдать при установке и размещении мы постарались подробно рассказать в нашей статье.
Добавить комментарий
Как снять и заменить тэн в водонагревателе Thermex от 30 до 100 литров
Содержание статьи:
Тэны широко используется во многих сферах. Будь-то промышленность или для домашнего обихода — вариантов масса. Интерес вызывает электронагреватель Термекс, который предназначен для нагрева воды.
Особенности ТЭНов для водонагревателя Термекс
ТЭН для бойлера Thermex
Отличаются ТЭНы друг от друга диаметром, мощностью, длиной и напряжением
Если говорить о мощности, то эта величина колеблется от десятков Ватт до десятков Квт, при этом длина может достигать от нескольких сантиметров до 3м. Напряжение варьирует от 12 до 660 В. Диаметр составляет 8,10,12,13 и 16мм.
При правильной эксплуатации срок службы ТЭНа будет достигать 5000 ч. при непрерывной работе.
Популярные модели для квартиры
Нагревательный элемент Термекс 2,0 кВт RGS YH 1.
2 mpA–TW подходит к бойлерам: Ariston, Timberk, Garanterm. Его уникальность в материале, из которого он изготовлен. Это медь, которая не подвержена коррозии. Полный бак нагревается достаточно быстро. Предусмотрено два режима мощности: 700 и 1300Вт.
Тэн Silver Heat (с серебром) зарекомендовал себя на рынке как первый механизм, который был изготовлен из серебра. Проводимые лабораторные исследования показали, что на констукции Silver Heat после эксплуатации остаются лишь незаметные следы накипи, в то время как на обычном изделии слой накипи составлял от 1,7 до 2,3 мм. Большое преимущество в использовании приборов из серебра — это антибактериальное свойство металла и недопущение перегрева нагревательного элемента.
Как выбрать подходящий механизм для бойлера
Лучше всего при выборе ссылаться на формулу, с помощью которой легко определить мощность подходящего ТЭНа:
Р = 0,0011хVх(tк-tн)/Т, где
Р – мощность ТЭНа, кВт
V – объем нагреваемой воды, л
tк – конечная температура воды, Со
tн – начальная температура воды, Со
Т – время нагрева воды, ч
Таким образом, можно вычислить: какая мощность нужна для любого бака и подобрать необходимый.
Например, для изделия объемом 30-50 л, подойдет устройство мощностью 1,2 Квт.
Выбирая мощные нагревательные элементы, будьте уверены, что ваша проводка выдержит напряжение.
Способы монтажа и подключения
Схема подключения электронагревателя
Перед подключением необходимо удалить антикоррозионную смазку, очистить поверхность изоляторов и стержней.
Перед выполнением работы снимается напряжение в сети. Сам монтаж производится с помощью штуцеров (крепежной арматуры). Нельзя устанавливать ТЭН на контактные стержни. Во время работы они не должны соприкасаться друг с другом — это учитывают при установке. Минимальное расстояние между ними 0,5 см.
Активная часть ТЭНа обязана находиться в воде. Места, где проходит ток, должны быть защищены от попадания влаги и прикосновений. Требуется заземление для каждого корпуса конструкции. Чтобы оперативно выявить выход из строя изделия, его рекомендуют подключать к сети через индивидуальный предохранитель (плавкую вставку).
Рекомендации для правильного подключения:
- напряжение между любой «фазой» и «нулем» всегда 220В;
- можно подключать несколько ТЭНов, соединенных между собой последовательно или параллельно в каждую ветвь «Звезды»;
- мощность каждой ветви «Звезды» должна быть одинаковой;
- суммарная мощность соединения складывается из показателя трёх ветвей.
Соблюдение перечисленных советов поможет избежать возможных неисправностей.
Основные виды поломок водонагревателей
Типы неисправностей:
- не нагревается вода или нагреваться слишком долго;
- электронагреватель то включается, то выключается чаще обычного;
- посторонние шумы в рабочем состоянии аппарата;
- появление нехарактерного запаха и цвета воды из бойлера.
Причины неисправности:
- перепады напряжения в сети;
- сервисное обслуживание либо несвоевременное, либо не производилось вообще;
- прибор неправильно подключен или установлен;
- наличие накипи и коррозии на прокладке, спиральных и трубчатых частях бойлера.

Нагреватель заработает снова, если снять и поменять ТЭН. При этом необходимо сам бак очистить от накипи.
Отзывы на продукцию
Андрей, г. Москва: «Достоинства: Быстро нагревает воду. Прослужил долго. Есть свой й сервисный центр. Это радует! Недостатки: взял бак с объемом 50л, для нашей семьи такой объем недостаточный, слишком быстро расходуется горячая вода и приходиться ждать какое-то время ее нагрева. Через год бак вышел из строя.
Ребята из сервисного центра Термекс устранили неполадку (поменяли тэн), т. к. кнопка выключения стала барахлить».
Марина, г. Москва: «Достоинства: Удобная штука для дачи, если есть проблема с горячей водой. Периодически провожу сервисное обслуживание, вызываю мастера из центра Термекс. Очищают от накипи элементы бака. Спасибо за оперативность и профессионализм!».
youtube.com/embed/t5XKSkGzfbQ?wmode=transparent&fs=1&hl=en&modestbranding=1&iv_load_policy=3&showsearch=0&rel=1&theme=dark» frameborder=»0″ allowfullscreen=»» loading=»lazy»/>
Снятие показаний и управление водонагревателем Термекс (Thermex IF 50) — blog.instalator
Водонагреватель THERMEX IF 50 V имеет электронный блок управления который имеет дисплей, отображающий текущую температуру, индикатор включения, индикатор нагрева, а также кнопки включения/выключения, управления температурой нагрева и функцией ускоренного нагрева. Для добавления водонагревателя в общую схему управления умным домом нам понадобится Arduino pro mini и модуль ESP8266.
Электронный блок управления водонагревателя не имеет никаких интерфейсов для управления и считывания с него информации. Для визуализации состояния в нем организована динамическая индикация с которой я и считал показания температуры и индикацию режимов работы. Управление и контроль за температурой организовано через WiFi по протоколу MQTT.
Для снятия блока управления необходимо отклеить наклейку, тут нужно быть предельно аккуратными так как наклейка приклеена по всей плоскости блока. Необходимо предварительно прогреть ее феном что бы размягчить клей и аккуратно отклеить не заламывая ее. Под наклейкой будет 6 саморезов, открутив которые блок свободно вынимается.
Внешне электронный блок выглядит так:
Плата панели управления водонагревателем THERMEX IFПлата панели управления водонагревателем THERMEX IFНа этом фото видно точки куда я подпаял провода идущие от ардуины.
Нарисовал схему родного электронного блока управления.
Электрическая схема штатного блока управления водонагревателя Термекс (Thermex IF 50 V)Микросхема в блоке управления маркирована как RD8P01AD0902. Найти даташит на эту микросхему не получилось. Как оказалось это перемаркированный 8- битный микроконтроллер, а настоящая его маркировка Holtek HT46R47. По схеме становится понятно, что в погоне за ценой, порты микроконтроллера экономили по максимуму.
Красными точками на схеме отмечены места подключения Arduino pro mini и промаркированы соответствующими ей обозначениями портов.
Схема подключения Arduino pro mini и ESP8266 к блоку управления водонагревателя Термекс
Код как всегда на моей странице GitHub.
Безбакерные водонагреватели или водонагреватели по запросу
Безрезервуарные водонагреватели, также известные как водонагреватели по запросу или проточные водонагреватели, обеспечивают горячую воду только по мере необходимости. Они не вызывают потерь энергии в режиме ожидания, связанных с накопительными водонагревателями, что может сэкономить вам деньги. Здесь вы найдете основную информацию о том, как они работают, подходит ли безрезервуарный водонагреватель для вашего дома и какие критерии использовать при выборе подходящей модели. Ознакомьтесь с инфографикой Energy Saver 101: Water Heating, чтобы узнать, подходит ли вам безрезервуарный водонагреватель, и с нашим обсуждением #AskEnergySaver о нагреве воды для получения дополнительных ответов об эффективном нагреве воды.
Как они работают
Бесконтактные водонагреватели нагревают воду напрямую, без использования накопительного бака. При открытии крана горячей воды холодная вода по трубе попадает в агрегат. Либо газовая горелка, либо электрический элемент нагревает воду. В результате безбаквальные водонагреватели обеспечивают постоянную подачу горячей воды. Вам не нужно ждать, пока резервуар наполнится достаточным количеством горячей воды. Однако мощность водонагревателя без резервуара ограничивает расход.
Обычно безбаквальные водонагреватели обеспечивают горячую воду в количестве 2–5 галлонов (7.6–15,2 л) в минуту. Газовые безбаквальные водонагреватели производят более высокий расход, чем электрические. Иногда, однако, даже самая большая газовая модель не может обеспечить достаточно горячей воды для одновременного многократного использования в больших домах. Например, одновременное принятие душа и включение посудомоечной машины может максимально растянуть водонагреватель без резервуара.
Чтобы решить эту проблему, вы можете установить два или более водонагревателя без бака, подключенных параллельно для одновременного использования горячей воды.Вы также можете установить отдельные водонагреватели без резервуаров для бытовых приборов, таких как стиральная машина или посудомоечная машина, которые потребляют много горячей воды в вашем доме.
Другие области применения водонагревателей по требованию включают следующее:
- Удаленные ванные комнаты или гидромассажные ванны
- Бустер для таких бытовых приборов, как посудомоечные машины или стиральные машины
- Бустер для солнечной системы нагрева воды.
Преимущества и недостатки
Для домов, в которых ежедневно используется 41 галлон или меньше горячей воды, водонагреватели по запросу могут быть на 24–34% более энергоэффективными, чем обычные водонагреватели с накопительными баками.Они могут быть на 8–14% более энергоэффективными для домов, в которых используется много горячей воды — около 86 галлонов в день.
Вы можете добиться еще большей экономии энергии — 27% –50%, если установите водонагреватель по требованию на каждом выходе горячей воды.
Первоначальная стоимость безрезервуарного водонагревателя выше, чем у обычного накопительного водонагревателя, но безбаковые водонагреватели обычно служат дольше и имеют более низкие эксплуатационные расходы и затраты на электроэнергию, что может компенсировать более высокую закупочную цену. Срок службы большинства водонагревателей без резервуаров составляет более 20 лет.У них также есть легко заменяемые детали, которые продлевают срок их службы на много лет. Напротив, накопительные водонагреватели служат 10–15 лет.
Безрезервуарные водонагреватели позволяют избежать потерь тепла в режиме ожидания, связанных с накопительными водонагревателями. Однако, хотя газовые водонагреватели без резервуаров, как правило, имеют более высокую скорость потока, чем электрические, они могут тратить энергию, если у них постоянно горящая сигнальная лампа.
Иногда это может компенсировать устранение потерь энергии в режиме ожидания по сравнению с накопительным водонагревателем.В водонагревателе, работающем на газе, контрольная лампа нагревает воду в баке, поэтому энергия не теряется.
Стоимость эксплуатации контрольной лампы в безбаквальном водонагревателе варьируется от модели к модели. Спросите производителя, сколько газа использует пилотный фонарь для рассматриваемой модели. Если вы приобретете модель, в которой используется стоячая контрольная лампа, вы всегда можете выключить ее, когда она не используется, для экономии энергии. Также рассмотрите модели, у которых есть устройство прерывистого зажигания (IID) вместо стоячей контрольной лампы.Это устройство похоже на устройство искрового зажигания на некоторых газовых кухонных плитах и духовках.
Выбор водонагревателя по запросу
Перед покупкой водонагревателя по запросу вам также необходимо принять во внимание следующее:
Установка и обслуживание
Правильная установка и обслуживание вашего водонагревателя по запросу может оптимизировать его энергоэффективность.
Правильная установка зависит от многих факторов. Эти факторы включают тип топлива, климат, местные строительные нормы и правила и вопросы безопасности, особенно касающиеся сжигания газовых водонагревателей.Поэтому для установки водонагревателя по требованию лучше обратиться к квалифицированному специалисту по сантехнике и отоплению. При выборе подрядчика выполните следующие действия:
- Запросите смету расходов в письменной форме
- Спросите справочные материалы
- Уточните информацию о компании в местном бюро Better Business.
- Узнайте, получит ли компания местное разрешение, если необходимо, и понимает ли она местные строительные нормы и правила. .
Если вы решили установить водонагреватель самостоятельно, сначала проконсультируйтесь с производителем.У производителей обычно есть необходимые инструкции по установке и эксплуатации. Кроме того, свяжитесь с вашим городом или поселком для получения информации о получении разрешения, если необходимо, и о местных правилах установки водонагревателя.
Периодическое обслуживание водонагревателя может значительно продлить срок его службы и свести к минимуму потерю эффективности. Прочтите руководство пользователя для получения конкретных рекомендаций по обслуживанию.
Повышение энергоэффективности
После того, как ваш водонагреватель правильно установлен и обслуживается, попробуйте некоторые дополнительные стратегии энергосбережения, которые помогут снизить ваши счета за нагрев воды.Некоторые энергосберегающие устройства и системы более экономически выгодно устанавливать вместе с водонагревателем.
| Подробнее:
Электрический
водонагреватель Переключатель биметаллический на два разные металлы, зажатые вместе. Металл расширяется при нагревании, за исключением того, что один металл расширяется иначе, чем другой металл, вызывающий деформацию или изгиб. Электрический водонагреватель внутри термостат, изгиб металла открывается и закрывается механическим переключателем. ![]() Типичный
бытовой неодновременный водонагреватель имеет 2 ТЭНа, называемых
верхний и
ниже
элементы. Оба элемента на обычном жилом водонагревателе никогда не
ВКЛ в
в то же время, если не будет изменена конкретная проводка.Как
для подключения термостатов | См. Больше Некоторые термостаты Винты L2 и T1 — это пустой паз или заклепка, так как провода не подключаются к либо L2, либо T1. Брендов термостата немного различаются, винты расположены иначе, некоторые числа немного отличаются, но основная концепция такая же, как у от бренда к бренду. Инструкции по водонагревателям доступны в Интернете. Этикетка сбоку резервуара показывает мощность прибора в ваттах и вольтах. К каждому термостату прилагается инструкция. Термостат должен плотно прилегать к стенке резервуара, чтобы показания температуры точный и водонагреватель защищен от перегрева | Подробнее:
Электрический
Последовательность работы термостата водонагревателя Бытовые водонагреватели можно подключить 4 основными способами. Не одновременный
встречается в большинстве бытовых водонагревателей. Plus одновременный, избыточный, и в непиковое время. Ключ — это знание как работает термостат. Как подключить термостаты Схема Слева показан основной неодновременный термостат функция. Этот термостат найден на водонагревателях 240 Вольт, имеющих 2 элемента. Проверьте этикетку сбоку бак для информации о напряжении. Цифра вольт, ампер, ватт Питание от блока выключателя подключается к винтам L1 и L3> некоторые термостаты, винты обозначены просто цифрами 1 и 3. Верхняя половина термостата — это ECO или отключение энергии выкл.> ECO чувствителен к нагреванию, поэтому, если температура достигает опасно высокие 150-180F, затем отключается ECO, и водонагреватель больше не работает. Это предотвращает взрыв водонагревателя. Просмотр диаграммы, питание от L1 и L3 проходит через красный сброс ECO и переходим к винтам L2 и L4. После прохождения электроэнергии через ECO она доступна для нагрева воды. Внутри термостата биметаллический переключатель. Два разных металла слились вместе. Каждый металл по-разному расширяется при нагревании. Поскольку два металла соединены, металл, который больше всего расширяется, вызывает биметаллический переключатель на изгиб. Изгибающее действие открывает и закрывает переключатель. На схеме биметаллический переключатель подключен к T1. когда температура внутри бака прохладная, биметаллический переключатель упирается в Т2 поэтому мощность передается от T1 к T2, а затем к верхнему нагревателю элемент.Когда температура внутри бака высокая, биметаллический переключатель отключается. от T2 и щелкает до T4. Когда это происходит, T1 передает питание на T4, Таким образом, верхний нагревательный элемент отключается, и мощность переходит на нижний элемент и термостат через винт Т4. В 240 Вольт
водонагреватель, элементы должны получать питание от двух горячих проводов. |
Высшая и более низкая теплотворная способность
Энергетическая ценность или теплотворная способность такие же, как теплота сгорания , и могут быть рассчитаны по термодинамическим значениям или измерены в подходящем аппарате:
Сгорает известное количество топлива при постоянном давлении и стандартных условиях (0 ° C и 1 бар) и выделяемое тепло улавливается известной массой воды в калориметре.Если начальная и конечная температуры воды измеряются, выделяемая энергия может быть рассчитана с использованием уравнения
H = ΔT mC p
где H = поглощенная тепловая энергия (в Дж), ΔT = изменение температуры (в ° C), m = масса воды (в г) и C p = удельная теплоемкость (4,18 Дж / г ° C для воды).
Полученное значение энергии, разделенное на граммы сожженного топлива, дает содержание энергии (в Дж / г).
В процессе сгорания образуется водяной пар, и можно использовать определенные методы для рекуперации количества тепла, содержащегося в этом водяном паре, путем его конденсации.
- Высшая теплотворная способность (= Высшая теплотворная способность — GCV = Высшая теплотворная способность — HHV) — вода сгорания полностью конденсируется, а тепло, содержащееся в водяном паре, рекуперируется. Теплотворная способность — NCV = Нижняя теплотворная способность — LHV) — продукты сгорания содержат водяной пар, а тепло в водяном паре не восстанавливается
В таблице ниже приведены валовая и чистая теплотворная способность ископаемого топлива, а также некоторых альтернативные виды биотоплива.
См. Также Теплота сгорания, ископаемые и альтернативные виды топлива — Энергосодержание и сжигание топлива — Выбросы двуокиси углерода
Для получения полной таблицы с более низкой теплотой сгорания LHV — поверните экран!
| Топливо | Плотность | Высокая теплотворная способность (HHV) (Полная теплотворная способность — GCV) | Низкая теплотворная способность Теплотворная способность — NCV) | |||||||||||||||||||||||||||
|---|---|---|---|---|---|---|---|---|---|---|---|---|---|---|---|---|---|---|---|---|---|---|---|---|---|---|---|---|---|---|
| при 0 ° C / 32 ° F, 1 бар | ||||||||||||||||||||||||||||||
| Газообразное топливо | [кг / м 3 ] | [г футы 3 ] | [кВтч / кг] | [МДж / кг] | [БТЕ / фунт] | [МДж / м 3 ] | [БТЕ / фут 3 ] | [кВтч / кг] | [МДж / кг] | [БТЕ / фунт] | [МДж / м 3 ] | [ БТЕ / фут 3 ] | ||||||||||||||||||
| Ацетилен | 1. 097 | 31,1 | 13,9 | 49,9 | 21453 | 54,7 | 1468 | |||||||||||||||||||||||
| Аммиак | 22,5 | 969078 | 900 | |||||||||||||||||||||||||||
| Водород | 0,090 | 2,55 | 39,4 | 141,7 | 60920 | 12.7 | 341 | 33,3 | 120,0 | 51591 | 10,8 | 290 | ||||||||||||||||||
| Метан | 0,716 | 20,3 | 15,4 | 55,5 | 23874 | 39,8 | 1069 | 50,0 | 21496 | 35,8 | 964 | |||||||||||||||||||
| Природный газ (рынок США) * | 0,777 | 22,0 | 14,5 | 52.2 | 22446 | 40,6 | 1090 | 13,1 | 47,1 | 20262 | 36,6 | 983 | ||||||||||||||||||
| Городской газ | 18,0 | 483 | 902 | при 15 ° C / 60 ° F | ||||||||||||||||||||||||||
| Жидкое топливо | [кг / л] | [кг / галлон] [кг / галлон] [кг / галлон] 90 [кВтч / кг] | [МДж / кг] | [БТЕ / фунт] | [МДж / л] | [БТЕ / галлон] | [кВтч / кг ] | [МДж / кг] | [БТЕ / фунт] | [МДж / л] | [БТЕ / галлон] | |||||||||||||||||||
| Ацетон | 0. 787 | 2,979 | 8,83 | 31,8 | 13671 | 25,0 | 89792 | 8,22 | 29,6 | 12726 | 23,3 | 83580 | ||||||||||||||||||
| Бутан | 0,601 | 0,601 | 49,1 | 21109 | 29,5 | 105875 | 12,58 | 45,3 | 19475 | 27,2 | 97681 | |||||||||||||||||||
| Бутанол | 0.810 | 10,36 | 37,3 | 16036 | 30,2 | 108359 | 9,56 | 34,4 | 14789 | 27,9 | 99934 | |||||||||||||||||||
| Дизельное топливо2,69 | 0,846 | 3,20 | 0,846 | 3 45,6 | 19604 | 38,6 | 138412 | 11,83 | 42,6 | 18315 | 36,0 | 129306 | ||||||||||||||||||
| Диметиловый эфир (DME) | 0.665 | 2,518 | 8,81 | 31,7 | 13629 | 21,1 | 75655 | 8,03 | 28,9 | 12425 | 19,2 | 68973 | ||||||||||||||||||
| Этан | 0,572 | 2,1652 | 0,572 | 2,165 51,9 | 22313 | 29,7 | 106513 | 13,28 | 47,8 | 20550 | 27,3 | 98098 | ||||||||||||||||||
| Этанол (100%) | 0. 789 | 2,987 | 8,25 | 29,7 | 12769 | 23,4 | 84076 | 7,42 | 26,7 | 11479 | 21,1 | 75583 | ||||||||||||||||||
| Диэтиловый эфир | 0,7 | 11,94 | 43,0 | 18487 | 30,8 | 110464 | ||||||||||||||||||||||||
| Бензин (бензин) * | 0.737 | 2,790 | 12,89 | 46,4 | 19948 | 34,2 | 122694 | 12,06 | 43,4 | 18659 | 32,0 | 114761 | ||||||||||||||||||
| Газойль (топочный мазут) * | 0,84 | 0,84 3,180 | 11,95 | 43,0 | 18495 | 36,1 | 129654 | 11,89 | 42,8 | 18401 | 36,0 | 128991 | ||||||||||||||||||
| Глицерин | 1.263 | 4,781 | 5,28 | 19,0 | 8169 | 24,0 | 86098 | |||||||||||||||||||||||
| Мазут * | 0,98 | 3,710 | 11,61 | 41,81 | 41,0 | 146974 | 10,83 | 39,0 | 16767 | 38,2 | 137129 | |||||||||||||||||||
| Керосин * | 0,821 | 3. 108 | 12,83 | 46,2 | 19862 | 37,9 | 126663 | 11,94 | 43,0 | 18487 | 35,3 | 126663 | ||||||||||||||||||
| Дизельное топливо * | 0,96 | 3,63478 | 44,0 | 18917 | 42,2 | 151552 | 11,28 | 40,6 | 17455 | 39,0 | 139841 | |||||||||||||||||||
| СПГ * | 0.428 | 1,621 | 15,33 | 55,2 | 23732 | 23,6 | 84810 | 13,50 | 48,6 | 20894 | 20,8 | 74670 | ||||||||||||||||||
| сжиженный газ * | 0,537 | 0,537 | 49,3 | 21195 | 26,5 | 94986 | 12,64 | 45,5 | 19561 | 24,4 | 87664 | |||||||||||||||||||
| Судовой газойль * | 0.855 | 3,237 | 12,75 | 45,9 | 19733 | 39,2 | 140804 | 11,89 | 42,8 | 18401 | 36,6 | 131295 | ||||||||||||||||||
| Метанол | 0,791 | 9,3 23,0 | 9888 | 18,2 | 65274 | 5,54 | 19,9 | 8568 | 15,8 | 56562 | ||||||||||||||||||||
| Метиловый эфир (биодизель) | 0. 888 | 3,361 | 11,17 | 40,2 | 17283 | 35,7 | 128062 | 10,42 | 37,5 | 16122 | 33,3 | 119460 | ||||||||||||||||||
| MTBE | 0,74378 | 0,74378 | 38,0 | 16337 | 28,2 | 101244 | 9,75 | 35,1 | 15090 | 26,1 | 93517 | |||||||||||||||||||
| Масла растительные (биодизель) * | 0.92 | 3,483 | 11,25 | 40,5 | 17412 | 37,3 | 133684 | 10,50 | 37,8 | 16251 | 34,8 | 124772 | ||||||||||||||||||
| Парафин (воск) | 0,907 | 0,9078 | 12,78 | 46,0 | 19776 | 41,4 | 148538 | 11,53 | 41,5 | 17842 | 37,4 | 134007 | ||||||||||||||||||
| Пентан | 0.63 | 2,385 | 13,50 | 48,6 | 20894 | 30,6 | 109854 | 12,60 | 45,4 | 19497 | 28,6 | 102507 | ||||||||||||||||||
| Бензин | 0,725 | 0,725 | 48,1 | 20679 | 34,9 | 125145 | 12,47 | 44,9 | 19303 | 32,6 | 116819 | |||||||||||||||||||
| Пропан | 0. 498 | 1,885 | 13,99 | 50,4 | 21647 | 25,1 | 89963 | 12,88 | 46,4 | 19927 | 23,1 | 82816 | ||||||||||||||||||
| Остаточное масло * | 902 0,9975190241,8 | 150072 | 10,97 | 39,5 | 16982 | 39,2 | 140470 | |||||||||||||||||||||||
| Гудрон * | 10.00 | 36,0 | 15477 | |||||||||||||||||||||||||||
| Скипидар | 0,865 | 3,274 | 12,22 | 44,0 | 18917 | 38,1 | 1365552 902 902 902 902 902 902 902 Твердое топливо * | [кВтч / кг] | [МДж / кг] | [БТЕ / фунт] | [кВтч / кг] | [МДж / кг] | [БТЕ / фунт] | |||||||||||||||||
| Антрацитовый уголь | 9. 06 | 32,6 | 14015 | |||||||||||||||||||||||||||
| Битуминозный уголь | 8,39 | 30,2 | 12984 | 8,06 | 29,0 | 8,06 | 29,0 | 9,11 | 32,8 | 14101 | ||||||||||||||||||||
| Древесный уголь | 8.22 | 29,6 | 12726 | 7,89 | 28,4 | 12210 | ||||||||||||||||||||||||
| Кокс | 7,22 | 26,0 | 11178 | уголь) | 3,89 | 14,0 | 6019 | |||||||||||||||||||||||
| Торф | 4.72 | 17,0 | 7309 | |||||||||||||||||||||||||||
| Нефтяной кокс | 8,69 | 31,3 | 13457 | 8,19 | 12683 9002 | 8,19 | 29,5 | 12683 | ||||||||||||||||||||||
| Полубитуминозный уголь | 6. 78 | 24,4 | 10490 | |||||||||||||||||||||||||||
| Сера (ы) | 2,56 | 9,2 | 3955 | 2,55 | 9,278| 2,55 | 9,278 | 0,701 | 4,50 | 16,2 | 6965 | 4,28 | 15,4 | 6621 | | ||||||||||||||||
* Топливо, состоящее из смеси нескольких различных соединений, может различаться по качеству между сезонами и рынками.Приведены значения для топлива с заданной плотностью. Разница в качестве может давать значения нагрева в диапазоне от 5 до 10% выше или ниже заданного значения. Кроме того, твердые виды топлива будут иметь одинаковые вариации качества для разных классов топлива.
- 1 БТЕ (IT) / фунт = 2,3278 МДж / т = 2327,8 Дж / кг = 0,55598 ккал / кг = 0,000646 кВтч / кг
- 1 ккал / кг = 1 кал / г = 4,1868 МДж / т = 4186,8 Дж / кг = 1,8 БТЕ (IT) / фунт = 0,001162 кВтч / кг
- 1 МДж / кг = 1000 Дж / г = 1 ГДж / т = 238.
85 ккал / кг = 429,9 БТЕ (IT) / фунт = 0,2778 кВт · ч / кг - 1 кВт · ч / кг = 1547,7 Btu (IT) / фунт = 3,597 ГДж / т = 3597,1 кДж / кг = 860,421 ккал / кг
- 1 британская тепловая единица (ИТ) / фут 3 = 0,1337 британских тепловых единиц (ИТ) / галлон (жидкий эквивалент США) = 0,03531 британских тепловых единиц (ИТ) / л = 8,89915 ккал / м 3 = 3,7259×10 4 Дж / м 3
- 1 британская тепловая единица (IT) / галлон (американский жидкий) = 0,2642 британской тепловой единицы (ИТ) / л = 7,4805 британской тепловой единицы (ИТ) / фут 3 = 66,6148 ккал / м 3 = 2,7872×10 5 Дж / м 3
- 1 МДж / м 3 = 26.839 британских тепловых единиц (ИТ) / фут 3 = 3,5879 британских тепловых единиц (ИТ) / галлон (жидкий эквивалент США) = 0,94782 британских тепловых единиц (ИТ) / л = 239,01 ккал / м 3
- 1 ккал / м 3 = 0,11237 британских тепловых единиц (IT) / фут 3 = 0,01501 британских тепловых единиц (ИТ) / галлон (жидкие тепловые единицы США) = 0,003966 британских тепловых единиц (ИТ) / л = 4186,8 Дж / м 3






Нижний элемент работает до тех пор, пока
бак достигает температуры
настройка.
Не одновременный
встречается в большинстве бытовых водонагревателей.
Чтобы
контроль нагрева, мощность поступает на термостат, который начинается с T1
винт.
Диаграмма
показаны горячие выводы на винтах L1 и L3. В описании выше
питание от одного горячего вывода переключалось между Т2 и Т4. Оттуда,
мощность передавалась к элементам, но цепь еще не была завершена.Чтобы
завершите схему 240, каждый элемент должен подключиться обратно к L4
винт. См. Полную принципиальную схему ниже.
097
787
789
108
888
498
06
78
85 ккал / кг = 429,9 БТЕ (IT) / фунт = 0,2778 кВт · ч / кг